Szafy kablowe o dużej wysokości całkowitej
Ze względu na nowe wymagania pojawiające się w normie VDE AR-N 4100 (TAR), szafki licznikowe stają się coraz większe. Dotyczy to również szafek do zastosowań zewnętrznych.
Szczególnie w obszarze miejskim dostępna przestrzeń pod zabudowę takich złącz licznikowych jest bardzo ograniczona. Aby móc zaoferować zgodne z normą złącza licznikowe na małej powierzchni, firma JEAN MÜLLER wdrożyła do swojej oferty obudowy o wysokości 1350mm.
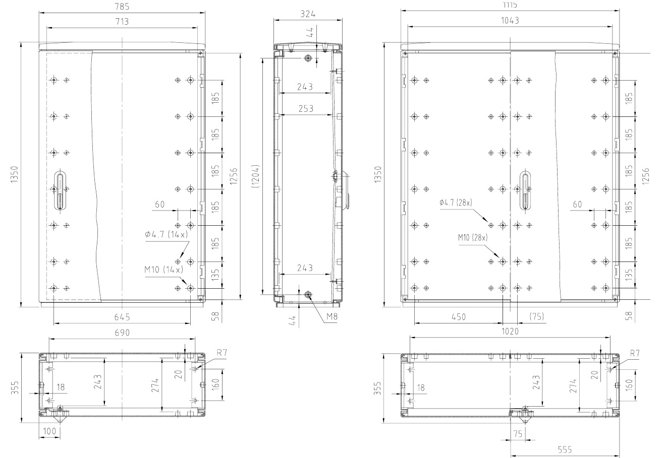
Szafki spełniają wymagania normy DIN EN 61439 i można je montować na wszystkich dostępnych na runku fundamentach DIN. Wewnątrz obudowy mamy do dyspozycji 1256 mm wyokości gdzie możemy zamontować płytę montażową lub system szyn zbiorczych ze śrubami.
Obecnie dostępne są standardowe rozmiary 1 (785 mm szerokości) i 2 (1115 mm szerokości). Wielkość 3 jest w przygotowaniu.
Szafa rozdzielcza
Szafa rozdzielcza KVSM, 320 mm głębokości, 1350 mm wysokości, IP44 z podwójnym zamknięciem
| Rozmiar | Forma dostawy | Opak. | Typ | Nr artykułu |
| 1 | Zmontowane | 1 | KVSM1-13/SVD | S2130000 |
| 2 | Zmontowane | KVSM2-13/SVD | S2230000 | |
| 3 | Zmontowane | KVSM3-13/SVD | S2xxx* | |
| *na zapytanie | ||||
Płyta montażowa
| Rozmiar | Wymiary płyty montażowej | Opak. | Typ | Nr artykułu |
| 1/1350 | 1209 x 710 x 5 mm | 1 | KVSM1/1350 | S8101873 |
| 2/1350 | 1209 x 1040 x 5 mm | 1 | KVSM2/1350 | S8201874 |
| 3/1350 | 1209 x 1340 x 5 mm | 1 | KVSM3/1350 | S8xxx* |
| *na zapytanie | ||||
Wymiary

| Dane techniczne | ||
| Parametry elektryczne | ||
| Znamionowe napięcie pracy | Un | AC400V |
| Napięcie znamionowe izolacji | Ui | AC690V |
| Napięcie znamionowe udarowe wytrzymywane | Uimp | 8kV 1,2/50µs |
| Kategoria przepięciowa | IV | |
| Stopień ochrony | IP44 | |
| Klasa ochronności | II | |
| Wytrzymałość dielektryczna | 130 kV/ cm | |
| Rezystancja przejścia | 1014 Ωcm | |
| Wytrzymałość na prąd pełzający | CTI 600 | |
| Parametry mechaniczne | ||
| Wytrzymałość na zginanie | N/mm2 | 150 |
| Wytrzymałość na uderzenia | kJ/m2 | >65 |
| Wytrzymałość na rozciąganie | N/mm2 | >55 |
| Stopień wytrzymałości mechanicznej | IK 10 | |
| Parametry fizyczne | ||
| Wytrzymałość temperaturowa | °C | > 200 |
| Próba drutem żarowym | °C | 960 |
| Klasa palności | HB40 | |
